0、前言
規則V型和U型彎曲件的毛坯展開尺寸,根據中性層長度不變原則,可以通過手工計算得出。形狀復雜且翼緣上有孔的彎曲件,其展開尺寸和孔位尺寸,如果通過手工計算,會很困難。而Solidworks鈑金功能中插入折彎和鈑金展開兩個命令,與Solidworks實體功能融合在一起,使這一工作變得簡單起來。圖1是左支架-發動機后懸置橫梁零件圖,材料為16MnL,翼緣上有孔且形狀不規則。下面以它為例,詳細介紹應用過程。

圖1 左支架-發動機后懸置橫梁零件圖
1、生成零件實體
1.1 啟動
SolidWorks2001,單擊文件→新建,在彈出對話框中選擇模板→零件,然后單擊確定按鈕。
1.2 制作基體。
選擇前視基準面,單擊插入→繪制草圖命令,進入草圖繪制。單擊插入→凸臺→拉伸,在PropertyManager中編輯定義,最后生成基體拉伸,如圖2所示。

圖2 基體拉伸
1.3 制作88°斜面。
選擇基體上面作為基準面,單擊插入→繪制草圖命令,進入草圖繪制。單擊插入→切除→拉伸,在PropertyManager中編輯定義,確定,完成88°斜面。
1.4 抽殼使零件厚度相等。
單擊插入→特征→抽殼,在PropertyManager中編輯定義,選擇要移除的面,確定,完成抽殼,如圖3所示。

圖3 基體抽殼
2、將零件轉換到鈑金。
單擊插入→特征→鈑金→折彎,在PropertyManager中編輯定義,確定,得到鈑金件,如圖4和圖5所示。其中k-因子在表1中直接選取,或利用插值法計算得出。

圖4 鈑金系數表

圖5 插入鈑金折彎

3、生成孔特征
分別選取兩翼緣平面和腹板為基準面,單擊插入→繪制草圖命令,進入草圖繪制。單擊插入→切除→拉伸,在PropertyManager中編輯定義,確定,完成孔特征,如圖6所示。

圖6 生成孔特征
4、將鈑金件生成工程圖
4.1單擊文件→新建,在彈出對話框中選擇模板→工程圖,然后單擊確定按鈕。
4.2單擊窗口→縱向平鋪,將工程圖文件和鈑金文件同列于視窗如圖7所示。

圖7 縱向平鋪窗口
4.3單擊插入→工程視圖→命名視圖,在PropertyManager中選取平坦圖樣,將視圖移動到圖紙范圍的適當位置,完成工程圖,如圖8所示。

圖8 命名視圖
5、出詳圖
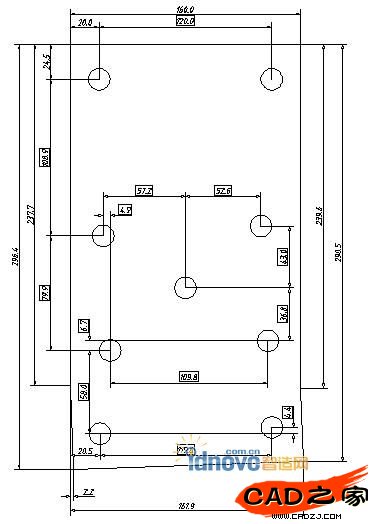
工程圖需要添加尺寸和注釋,來達到實用要求,如圖9所示。

圖9 詳細工程圖
6、結束語
工程圖提供的展開尺寸,經過壓形模的驗證,制件符合圖紙要求。這說明利用Solidworks鈑金功能求得彎曲件展開尺寸,是一種可行的辦法。
相關文章
- 2021-09-08BIM技術叢書Revit軟件應用系列Autodesk Revit族詳解 [
- 2021-09-08全國專業技術人員計算機應用能力考試用書 AutoCAD2004
- 2021-09-08EXCEL在工作中的應用 制表、數據處理及宏應用PDF下載
- 2021-08-30從零開始AutoCAD 2014中文版機械制圖基礎培訓教程 [李
- 2021-08-30從零開始AutoCAD 2014中文版建筑制圖基礎培訓教程 [朱
- 2021-08-30電氣CAD實例教程AutoCAD 2010中文版 [左昉 等編著] 20
- 2021-08-30電影風暴2:Maya影像實拍與三維合成攻略PDF下載
- 2021-08-30高等院校藝術設計案例教程中文版AutoCAD 建筑設計案例
- 2021-08-29環境藝術制圖AutoCAD [徐幼光 編著] 2013年PDF下載
- 2021-08-29機械AutoCAD 項目教程 第3版 [繆希偉 主編] 2012年PDF