利杰登烏魯木齊明宇豪雅酒店客房施工圖下載
- 軟件大小:91 MB
- 更新時間:2017-01-26
- 軟件授權:免費下載
- 所屬欄目:CAD經典實例
- 軟件情況:綠色安全免費下載
- 軟件語言:簡體中文
- 應用平臺:windows xp/vista/win7/
- 本站地址:CAD之家 m.drbzy.com
軟件介紹
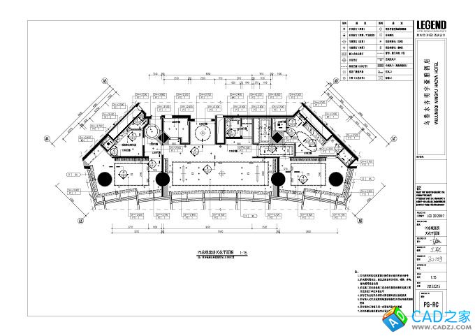
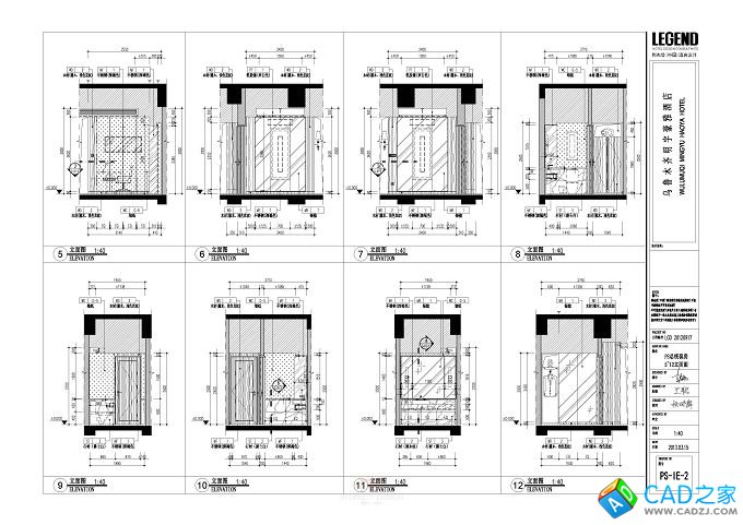
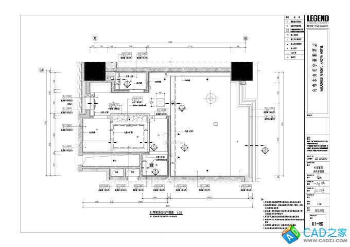
利杰登-烏魯木齊明宇豪雅酒店客房施工圖
CAD格式: AutoCAD 2008
文件大小: 137MB
著名設計師: 利杰登
施工圖內容: 平面 立面 節點






[ 下載地址1 ]
推薦下載