邱德光明珠花園9棟全套施工設計圖下載
- 軟件大小:12 MB
- 更新時間:2016-01-27
- 軟件授權:免費下載
- 所屬欄目:CAD經典實例
- 軟件情況:綠色安全免費下載
- 軟件語言:簡體中文
- 應用平臺:windows xp/vista/win7/
- 本站地址:CAD之家 m.drbzy.com
軟件介紹
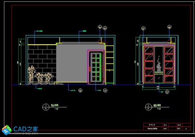
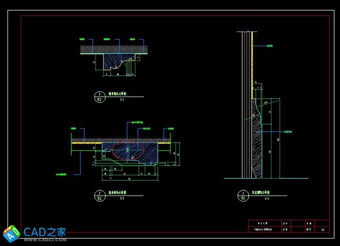
邱德光-廣州市宏宇集團規劃設計部--明珠花園9棟
項目名稱: 明珠花園9棟03/04戶型
CAD格式: AutoCAD 2004
文件大小: 41.6 MB
著名設計師: 邱德光
施工圖內容: 平面 立面 節點 物料表





[ 下載地址1 ]
推薦下載