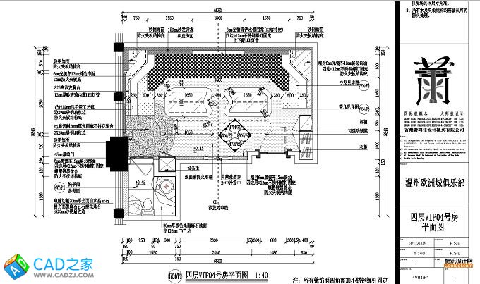
蕭鴻生溫州歐洲城KTV俱樂部完整施工圖下載
- 軟件大小:21 MB
- 更新時間:2016-01-11
- 軟件授權:免費下載
- 所屬欄目:CAD經典實例
- 軟件情況:綠色安全免費下載
- 軟件語言:簡體中文
- 應用平臺:windows xp/vista/win7/
- 本站地址:CAD之家 m.drbzy.com
軟件介紹
蕭鴻生溫州歐洲城KTV俱樂部完整施工圖下載
項目名稱: 蕭鴻生--溫州歐洲城KTV俱樂部(施工圖)
CAD格式: AutoCAD 2004
著名設計師: 蕭鴻生




[ 下載地址1 ]