精致時尚三室二廳樣板房室內裝修施工圖下載
- 軟件大?。?/b>4.2 MB
- 更新時間:2015-03-26
- 軟件授權:免費下載
- 所屬欄目:CAD經典實例
- 軟件情況:綠色安全免費下載
- 軟件語言:簡體中文
- 應用平臺:windows xp/vista/win7/
- 本站地址:CAD之家 m.drbzy.com
軟件介紹
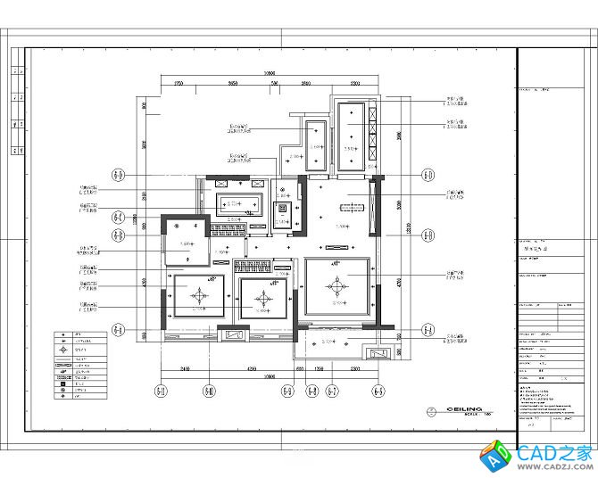
項目名稱: 精致時尚三室二廳樣板房室內裝修
CAD格式: AutoCAD 2007
文件大小: 解壓后4.53M
施工圖來源: 朋友
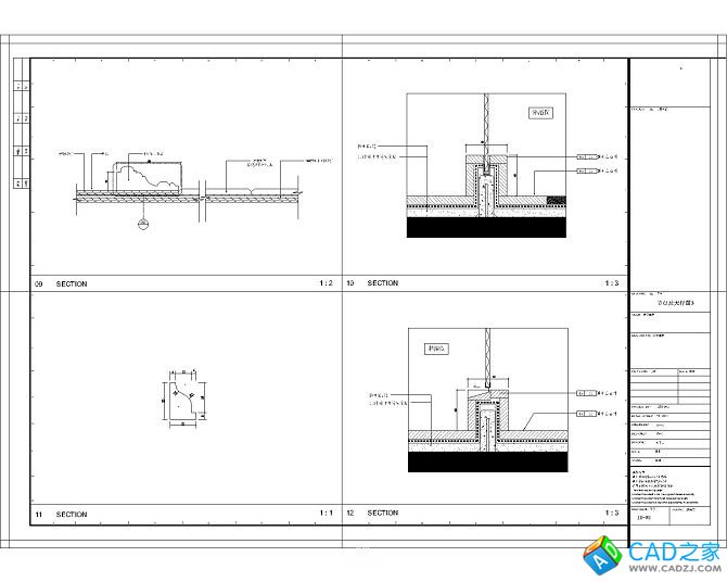
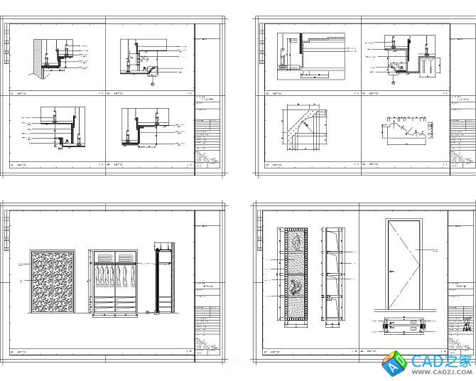
施工圖內容: 平面 頂面 立面 節點






[ 下載地址1 ]