簡歐風格18層高層住宅區建筑CAD施工圖下載
- 軟件大小:33 MB
- 更新時間:2017-08-04
- 軟件授權:免費下載
- 所屬欄目:CAD經典實例
- 軟件情況:綠色安全免費下載
- 軟件語言:簡體中文
- 應用平臺:windows xp/vista/win7/
- 本站地址:CAD之家 m.drbzy.com
軟件介紹
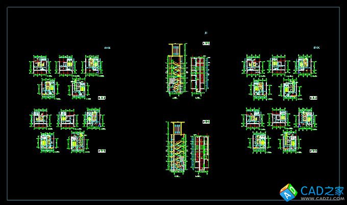
建筑朝向為北向90度,利用南邊道路引入人流和車流;建筑主體南北面局部有水平遮陽設施;夏季主導風向投射角為63.04度。
圖紙包含:總平面圖,各層平面圖,立面圖,剖面圖,節點詳圖,節點大樣,門窗表及門窗詳圖等等。




[ 下載地址1 ]
推薦下載