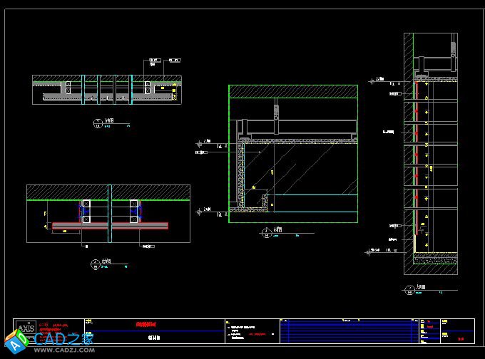
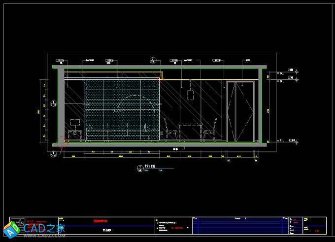
南通綠城玉蘭公寓A戶型樣板房平立面施工圖及照片
- 軟件大?。?/b>5.5 MB
- 更新時間:2016-05-26
- 軟件授權:免費下載
- 所屬欄目:CAD經典實例
- 軟件情況:綠色安全免費下載
- 軟件語言:簡體中文
- 應用平臺:windows xp/vista/win7/
- 本站地址:CAD之家 m.drbzy.com
軟件介紹
南通綠城玉蘭公寓A戶型樣板房平立面施工圖及照片下載










[ 下載地址1 ]
推薦下載
南通綠城玉蘭公寓A戶型樣板房平立面施工圖及照片下載









