洪湖濕地旅游城金灣酒店1號樓施工圖CAD圖紙下載
- 軟件大?。?/b>45 MB
- 更新時間:2016-03-29
- 軟件授權:免費下載
- 所屬欄目:CAD經典實例
- 軟件情況:綠色安全免費下載
- 軟件語言:簡體中文
- 應用平臺:windows xp/vista/win7/
- 本站地址:CAD之家 m.drbzy.com
軟件介紹
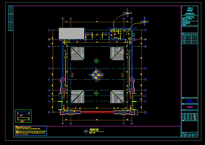
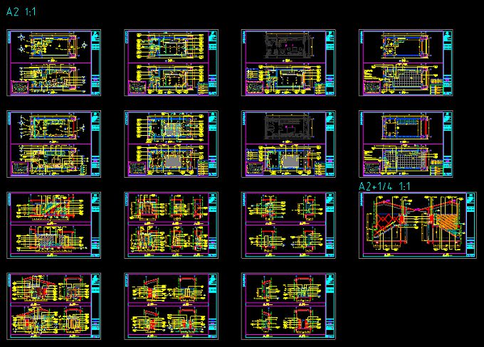
羿天建筑裝飾--洪湖濕地旅游城金灣酒店1號樓施工圖








[ 下載地址1 ]
推薦下載
羿天建筑裝飾--洪湖濕地旅游城金灣酒店1號樓施工圖







