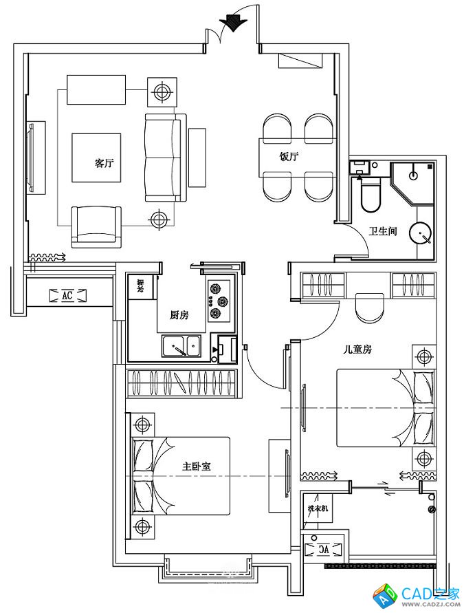
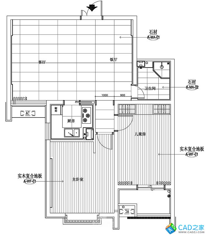
創新地產室內樣板房全套施工圖方案(含節點大樣效果圖)
- 軟件大小:4.1 MB
- 更新時間:2015-03-31
- 軟件授權:免費下載
- 所屬欄目:CAD經典實例
- 軟件情況:綠色安全免費下載
- 軟件語言:簡體中文
- 應用平臺:windows xp/vista/win7/
- 本站地址:CAD之家 m.drbzy.com
軟件介紹
創新地產室內樣板房全套施工圖方案(含節點大樣效果圖)






[ 下載地址1 ]
推薦下載
創新地產室內樣板房全套施工圖方案(含節點大樣效果圖)





