視圖管理器提供了可視化進行視圖定義和視圖管理的功能,用它進行視圖管理非常方便,熟練使用將很大程度提高設計效率。
使用浩辰CAD菜單中的:視圖——命名視圖來打開視圖管理器,或者在命令行輸入v回車也可以。

對話框中選擇“新建”,可以為當前工作圖紙根據不同的觀察區域或者觀察角度命名多個視圖,以便調用視圖查看圖紙。

輸入視圖名稱,“當前顯示”選項意為選擇保存當前顯示區域為一個視圖,或者選擇“定義窗口”選項,將由用戶來指定一個視圖窗口。
作為示例這里我們新建了3個視圖,分別設置區域A和區域B顯示兩個不同的平面圖區域,設置等軸測視圖顯示等軸測視角的觀察結果。選擇一個視圖,點擊“置為當前”選項就可以調用該視圖。

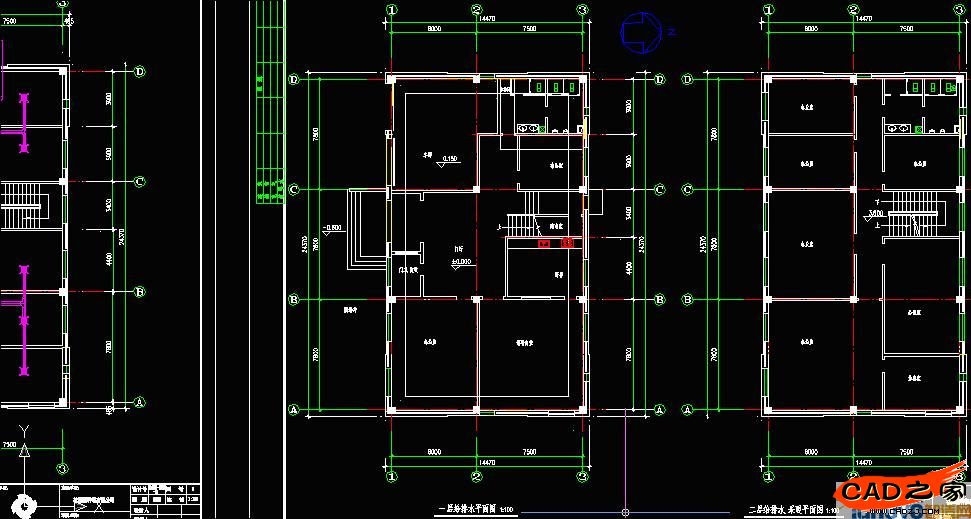
全部圖紙如圖所示

下面分別調用3個視圖,結果如下
區域A

區域B


相關文章
- 2021-09-08BIM技術叢書Revit軟件應用系列Autodesk Revit族詳解 [
- 2021-09-08全國專業技術人員計算機應用能力考試用書 AutoCAD2004
- 2021-09-08EXCEL在工作中的應用 制表、數據處理及宏應用PDF下載
- 2021-08-30從零開始AutoCAD 2014中文版機械制圖基礎培訓教程 [李
- 2021-08-30從零開始AutoCAD 2014中文版建筑制圖基礎培訓教程 [朱
- 2021-08-30電氣CAD實例教程AutoCAD 2010中文版 [左昉 等編著] 20
- 2021-08-30電影風暴2:Maya影像實拍與三維合成攻略PDF下載
- 2021-08-30高等院校藝術設計案例教程中文版AutoCAD 建筑設計案例
- 2021-08-29環境藝術制圖AutoCAD [徐幼光 編著] 2013年PDF下載
- 2021-08-29機械AutoCAD 項目教程 第3版 [繆希偉 主編] 2012年PDF