AutoCAD自帶的填充圖案不滿足使用時,如何創建自己的填充圖案呢?
在C:Documents and Settings你的用戶名Application DataAutodeskAutoCAD 版本號R17.1chsSupport路徑里(如果是Windows 7,路徑是C:用戶你的用戶名AppDataRoamingAutodeskAutoCAD 版本號R17.1chsSupport)新建一個文本文件并將它打開,在文本文件里輸入填充圖案的定義,保存后將該文本文件改成便于記憶的文件名,擴展名一定要是“pat”。
填充圖案定義的第一行是圖案名稱和說明,以“*”號開頭,名稱與說明之間用英文逗號隔開,說明允許省略。
從第二行開始是若干行組成圖案的直線段或點的定義,AutoCAD的填充圖案只能由直線段或點構成,即便是曲線,也必須用直線段擬合而成,直線段或點的定義格式如下:
默認角度,基點X坐標,基點Y坐標,X偏移,Y偏移,劃線長度,間隔,劃線長度,間隔……
其中Y偏移不允許為零,劃線長度和間隔可以是1個或多個,劃線長度如果是零,表示畫一個點,間隔用負數表示。如果省略了劃線長度和間隔,則圖案由直線組成。
下圖對X偏移、Y偏移、劃線長度、間隔的含義進行了說明。AutoCAD在填充區域里先沿著旋轉了默認角度的X方向按照劃線長度和間隔距離循環重復,畫出這條線,再間隔Y偏移復制這條線,直至充滿整個填充區域。如果還有其它定義行,也遵循此過程畫出。

上圖里的填充圖案定義如下:
*實例1,此圖案為一例子
45,0,0,2,5,10,-4
定義文件里可以添加用英文分號開頭的注釋。
如果填充圖案的定義是這樣的:
*實例2
45,0,0,2,5,10,-4,.25,-4 ;定義了一條點劃線
45,3.536,0,0,5 ;定義了一條直線
其中定義的第二行里沒有劃線長度和間隔,因此是定義了一條直線。基點X坐標為3.536,保證了兩條線均勻相間。3.536是這樣算出來的,上一條定義的點劃線的X偏移(也就是兩條點劃線之間的距離)是5,要使實線正好在點劃線當中,實線的基點應該是

填充后的圖案如下:

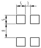
如果要創建如下所示的填充圖案:

經過分析,這個圖案可以由兩條線組成,其中一條是正方形的上邊和下邊,要水平畫,默認角度為0,劃線長度為5,間隔距離也是5,每次復制沿著線的Y方向偏移5。另一條是正方形的左邊和右邊,要豎直畫,也就是默認角度為90,劃線長度為5,間隔距離也是5,每次復制也是沿著線的Y方向偏移5(注意,是線的Y方向,不是模型空間的Y方向)。因此圖案的定義是:
*小方塊
0, 0, 0, 0, 5, 5, -5
90, 0, 0, 0, 5, 5, -5
下面這個圖案由于間隔與邊長不相等就要復雜一些,圖案里正方形的上邊和下邊不能合用一條線定義,同樣左邊和右邊也不能合用一條線定義。

該圖案的定義是這樣的:
*間距不等的小方塊
0,0,0,0,13,5,-3 ;下邊
0,0,5,0,13,5,-3 ;上邊
90,0,0,0,8,5,-8 ;左邊
90,5,0,0,8,5,-8 ;右邊
圖案里如果有曲線,也都是由直線段擬合而成,因此定義將非常復雜,例如下面的木紋斷面圖案。

創建的圖案文件里的每一行都要以回車結尾,往往最后一行容易忽略這一點,千萬注意,否則使用的時候會提示出錯。
一個圖案文件里可以只定義一個圖案,也可以定義多個圖案。可以打開C:Documents and Settings你的用戶名Application DataAutodeskAutoCAD 版本號R17.1chsSupport路徑里(如果是Windows 7,路徑是C:用戶你的用戶名AppDataRoamingAutodeskAutoCAD 版本號R17.1chsSupport)里的自帶的預定義填充圖案acadiso.pat文件看看,里面就定義了許多個填充圖案。#p#分頁標題#e#
要使用自己創建的填充圖案很簡單,在AutoCAD里運行“bhatch”命令后在對話框窗口里的“類型”下拉列表里選“自定義”,再點擊“自定義圖案”右側帶三個點的按鈕,就可以找到你創建的填充圖案文件了。

另外說一下,網上可以找到一款名叫Yqmkpat的免費軟件,能夠將畫成的圖形自動轉換生成填充圖案文件,十分好用。