青島某環保產業園區八層辦公樓建筑施工圖
- 軟件大小:1.6 MB
- 更新時間:2018-02-20
- 軟件授權:免費下載
- 所屬欄目:建筑圖紙
- 軟件情況:綠色安全免費下載
- 軟件語言:簡體中文
- 應用平臺:windows xp/vista/win7/
- 本站地址:CAD之家 m.drbzy.com
軟件介紹
青島某環保產業園區八層辦公樓建筑施工圖
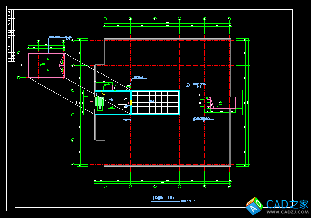
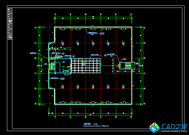
工程占地面積:1435.51平方米,總建筑面積:10949.5平方米,結構形式為:鋼筋混凝土框架結構、層數為: 8層、高度為:30 米
本套圖紙包括圖紙目錄、圖紙說明、工程作法、門窗表、各層建筑平面、立面、剖面圖、衛生間詳圖、樓梯間詳圖、墻身大樣、檐口作法等,共22張圖紙
設計功能包括:會議室、空調機房、開放式辦公室等。





[ 下載地址1 ]
推薦下載